Projet Maison neuve 3 CH avec jardin orienté SUD OUEST - HUPPAYE

50 000 €

À vendre

  • 3 chambres
  • 1 salle de bain
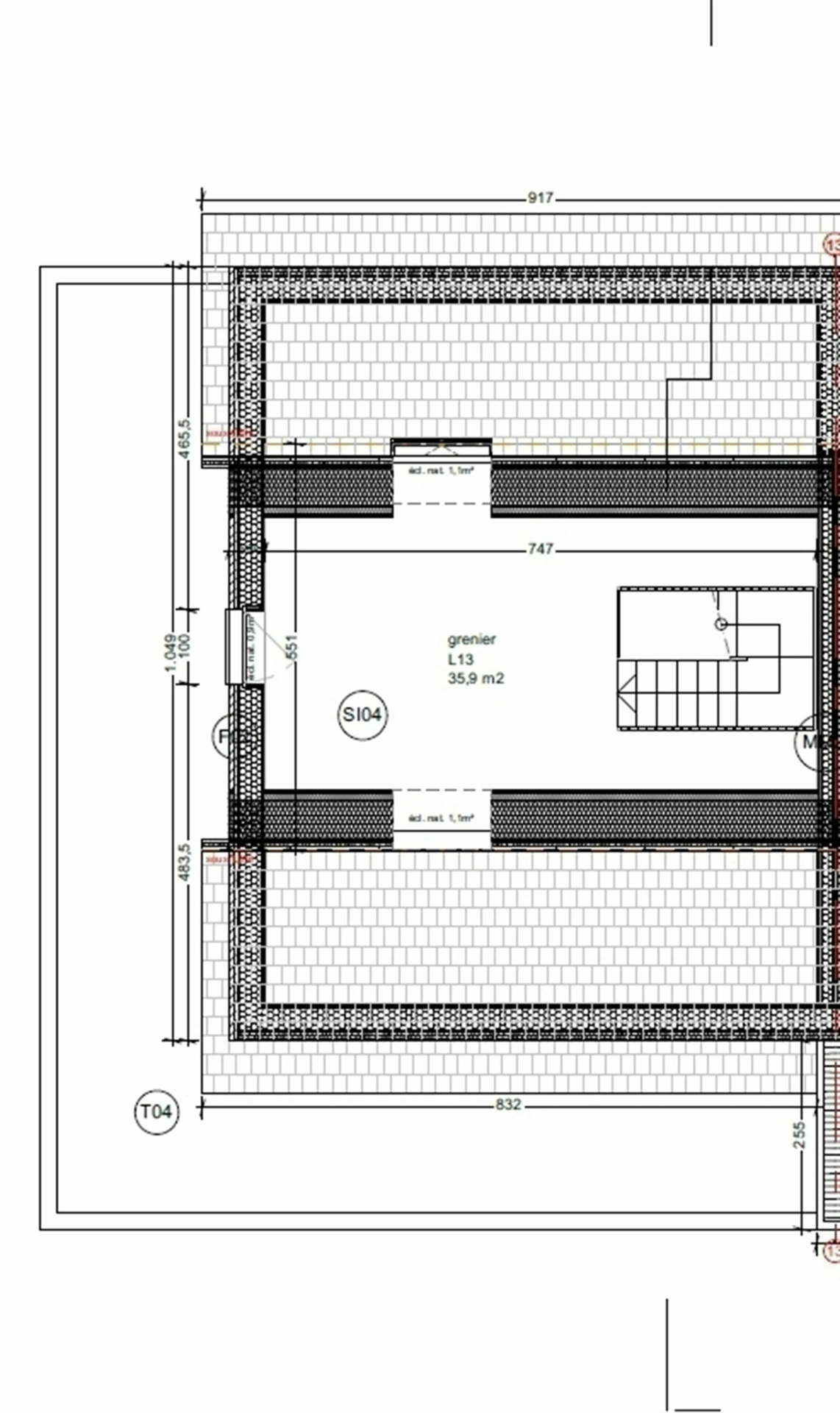
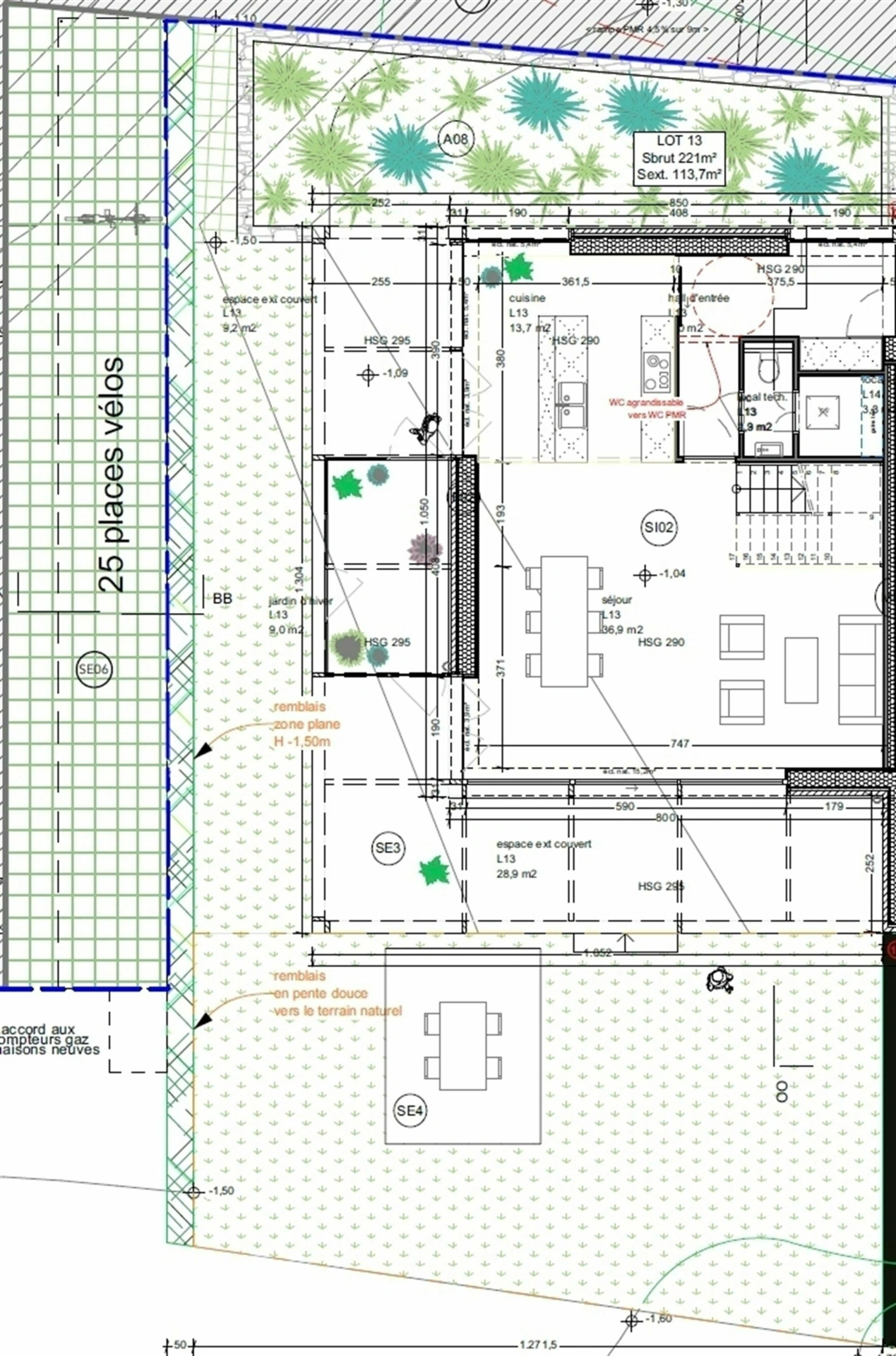
  • Surface habitable : 162m2

A la recherche d'un projet à petit budget vous permettant de construire votre nid douillet ? L'Agence PETYT vous présente à Huppaye (entre Jodoigne et Hannut), au sein d'un ensemble de bâtiment de qualité, un terrain plat d'une contenance de plus de 2 ares avec permis octroyé en 2023 vous permettant de démarrer IMMEDIATEMENT la construction de votre maison. Avec ses 160 m2, son généreux séjour de plus de 35 m2 agrémenté d'une terrasse et d'un jardin, tous deux orientés SUD-OUEST avec vue magnifique sur la campagne. Construction soumise à la tva à 21%. Vous ne pouvez qu'être séduit par l'environnement, la qualité du projet! Pus de renseignements ou plannifier une visite, contactez-nous au 0494/08.47.38 ou via mail à contact@agencepetyt.be.

Certificat énergetique

peb

S’incrire dans la base de données de l’agence

Soyez contacté en priorité pour un bien qui rentre dans vos critères de recherche !

Do Not Track détecté