Magnifique terrain 20 ares dans un cadre bucolique - BIERGES

325 000 € (Prix minimum)

À vendre

  • Entièrement équipée

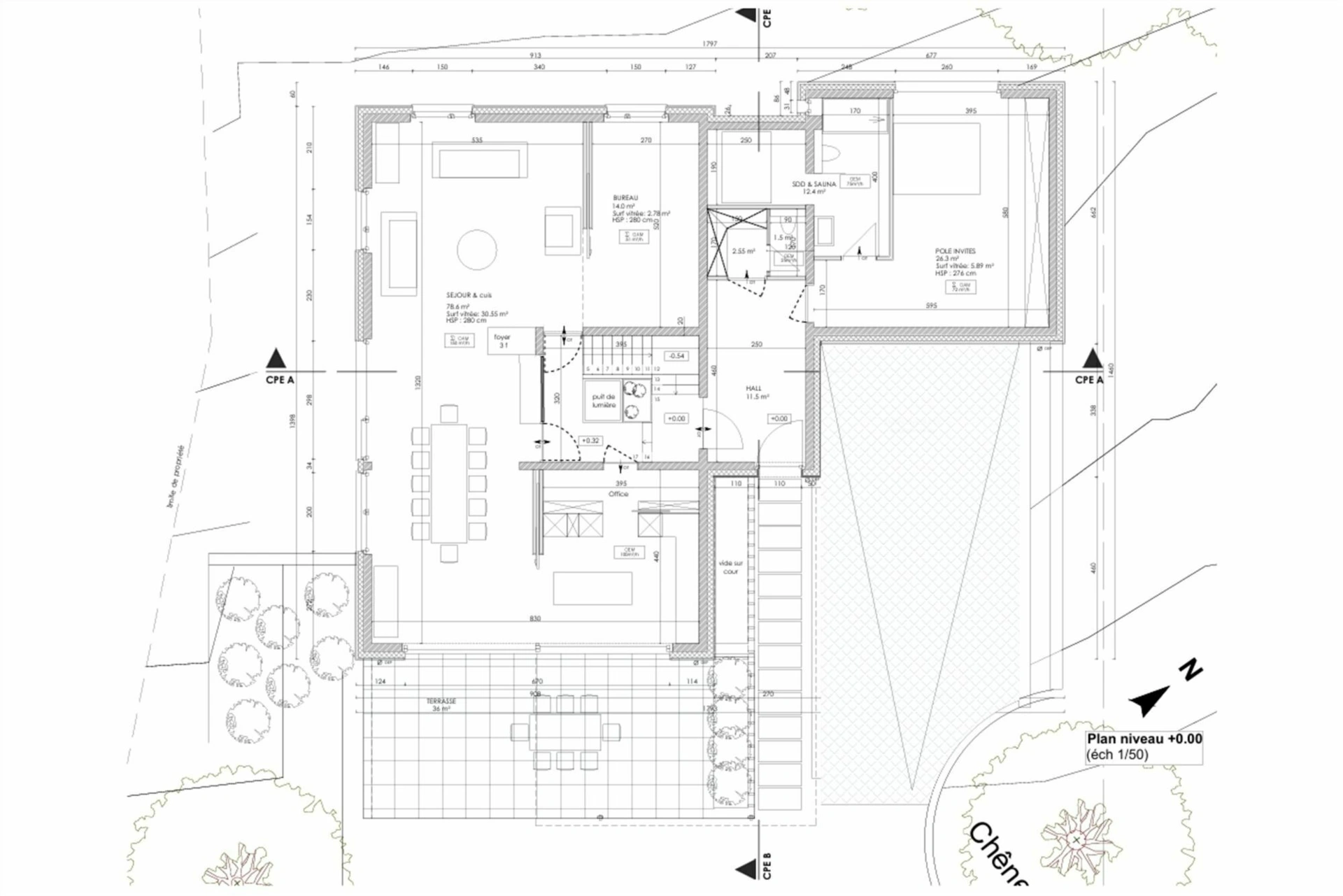
L'Agence Petyt vous propose de découvrir un terrain unique de 20 ares, situé dans un cadre bucolique et à seulement 5 minutes (2.6km) de l'école internationale LE VERSEAU . Orienté sud-ouest en façade arrière, avec une largeur à rue de près de 29 mètres. Un permis visant la construction d'une villa contemporaine de 4 CH/ 2 SDD & SDB avec espace professionnel, est octroyé et est inclus dans le prix de vente. Son emplacement, très prisé, se trouve dans un quartier résidentiel paisible, dans une rue à faible passage, offrant un véritable havre de tranquillité à seulement quelques minutes de Louvain-la-Neuve, Nivelles et de l'E411. Ce terrain bénéficie de deux accès pratiques, et tous les impétrants (eau, électricité, égouts) sont déjà présents en voirie publique, facilitant la réalisation de votre projet. Libre de constructeur et d’architecte, il vous offre une grande flexibilité pour concevoir la maison de vos rêves. Saisissez cette opportunité rare d'acquérir un terrain de qualité dans un environnement privilégié. Contactez dès aujourd'hui l'Agence Petyt au 081/44.40.22 ou par e-mail à contact@agencepetyt.be pour plus d'informations ou pour organiser une visite. Prix: faire offre à partir de 325 000 euros.

S’incrire dans la base de données de l’agence

Soyez contacté en priorité pour un bien qui rentre dans vos critères de recherche !

Do Not Track détecté